Olá pessoas! Já faz um tempo que eu não posto aqui no blog e venho novamente com o mesmo motivo (acho que vocês já sabem qual é): faculdade, projeto, estágio, enfim, aquela rotina básica de um estudante de arquitetura. Mas a boa notícia de tudo isso é que finalmente estou chegando (de verdade) nos períodos finais da faculdade.
Para aqueles que não sabem, eu estudo na UFRJ cursando o nono período. No nono nós temos dois projetos: o projeto executivo e o projeto final de graduação 1 (TFG1). Eu como uma típica estudante resolvi (pela milésima vez) dividir mais uma vez o período. A diferença é que dessa vez eu dividi sem o menor peso na consciência, eu realmente queria produzir um bom projeto (tanto executivo quanto final). Eu resolvi fazer primeiro o projeto executivo e período que vem (daqui a uma semana) eu devo partir para o início do meu projeto final.
Sobre o projeto
Pois bem, esse período eu trabalhei em conjunto com a minha amiga de longa data, Letícia Félix, em um projeto executivo de uma casa na árvore. Sim, você ouviu certo. Uma casa na árvore. O primeiro e grande desafio que tivemos foi com a questão do tipo de árvore e do tipo de encaixe que utilizaríamos no projeto. Fazendo algumas pesquisas conseguimos selecionar algumas espécies e acabamos escolhendo o Eucalipto por ser uma espécie resistente e muito utilizada em casas na árvore.

O segundo desafio foi saber como poderíamos sustentar a casa utilizando as árvores. Não tínhamos um terreno específico e para que o projeto realmente funcionasse precisaríamos ter algum parâmetro de como seria a implantação das árvores. Para solucionar essa questão escolhemos plantações de eucaliptos, já que estas possuem um espaçamento fixo entre as árvores. Basicamente existem dois tipos de plantações: A que é feita em pequena e escala e a que é feita em grande escala. A primeira utiliza um espaçamento de dois metros enquanto a segunda utiliza um espaçamento de três em três metros. Ficamos com a segunda opção. Definido isso, passamos para a próxima fase que seria solucionar o problema da sustentação da casa. Queríamos uma solução que trouxesse leveza mas que ao mesmo tempo fizesse a casa “pertencer” ao ambiente natural a qual as árvores estavam plantadas. Com um pouco de pesquisa conseguimos achar uma espécie de parafuso utilizado para fixar casas em árvores. Escolhemos esse sistema para apoiar a casa.
Os materiais

A casa seguiu um padrão modular que se encaixava por dentro dos troncos das árvores. O material utilizado foi principalmente a madeira, mas também utilizamos aço nos parafusos e alumínio nas esquadrias. O acesso principal é realizado através de uma escada que dá para uma área externa de convívio, compartilhada por duas casas. A ideia é que as casas sejam replicadas de acordo com a necessidade de cada local.
Relação interior/exterior:
A casa em si compartilha a área externa com o vizinho mas também possui uma área privada, um terraço na qual o morador pode desfrutar da vista da natureza ao seu redor. Uma grande fachada de vidro foi implantada, trazendo a natureza para dentro da área interna, fazendo com que o morador desfrute da vista enquanto circula pela casa.
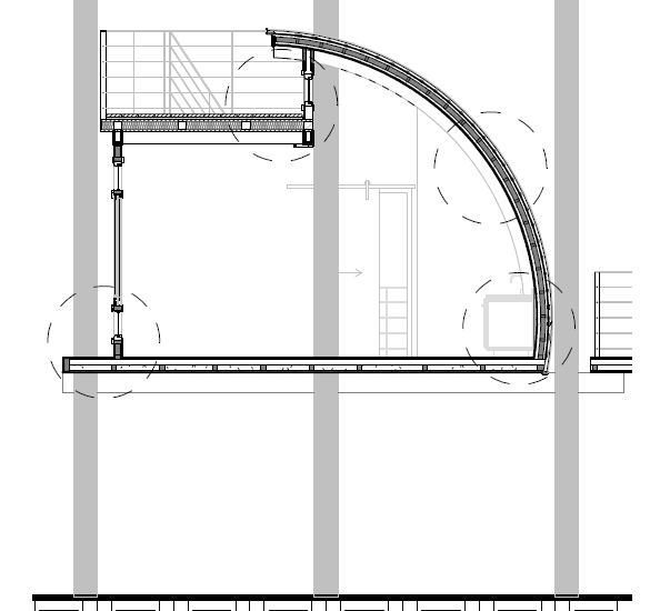
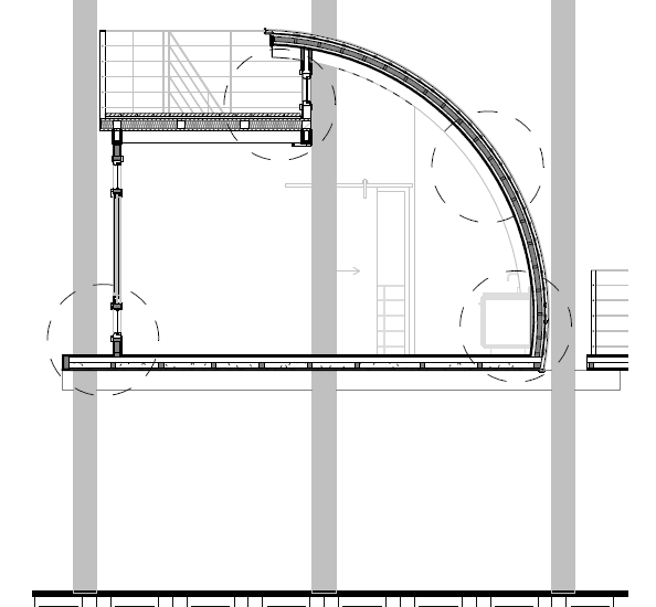
Planta do 1º Pav. e planta da trama da laje (feita de madeira, apoiada em vigas que se conectam às árvores por meio dos parafusos):

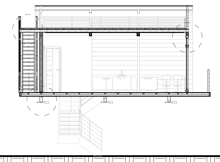
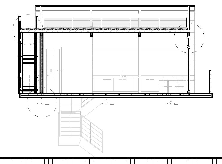
No interior da casa, os ambientes são totalmente integrados. Sala e cozinha tornam-se um único ambiente, enquanto que da sala é possível ter uma conexão direta com o quarto.


Na cobertura instala-se uma grande curva que quebra com a geometria retangular das paredes, fazendo com que esta se abra diretamente para a natureza. Aqui, cobertura e terraço se unem em um único sentido, dando abertura para a natureza ao redor da casa.
A forma de representação:
Para esse projeto, utilizamos o formato A2 para a apresentação, fora a maquete física em 1:25. Eu particularmente confesso que eu nunca demorei tanto para “conceber” uma diagramação por um pequeno problema: as imagens eram muito grandes (escala 1:25)! Levei uma tarde inteira quebrando a cabeça para descobrir qual seria a melhor forma de mostrar os desenhos e principalmente, valorizar o projeto. A forma que eu vi que melhor se adequava ao que eu precisava era trabalhando com as pranchas na vertical, contendo cada uma um desenho e dois detalhes construtivos.
Ao lado: Maquete física que nos custou algumas horas de puro estress. Mas conseguimos, isso é o que importa.
Diagramação e conteúdo das pranchas:
Escolhemos duas fachadas para mostrar nos desenhos. Em ambas as vistas utilizamos a sombra para dar a ideia de profundidade. Todo o projeto foi feito no Revit. A imagem em 3D da estrutura, os renders e todos os desenhos foram exportados do Revit. As vistas e as perspectivas foram trabalhadas posteriormente no Photoshop, junto com a diagramação. As legendas dos detalhes foram inseridos nas pranchas de baixo, estabelecendo uma conexão destas com as pranchas de cima. Uma faixa com transparência foi utilizada como fundo, para que se mantivesse a visão da árvores e ao mesmo tempo permitisse uma fácil leitura do texto. As cores utilizadas foram basicamente preto e cinza. Para os detalhes utilizou-se o laranja. O uso de cores variadas destacam-se mais nas perspectivas.
Corte transversal e longitudinal:
Por fim, foram detalhados os encontros da laje com a cobertura, da cobertura com o terraço, das esquadrias e da escada.
Detalhes construtivos:
Bem pessoas, é isso! Eu espero que vocês tenham gostado desse post. Em breve eu devo lançar um post falando um pouco sobre detalhamento no Revit e pós-produção de imagens no photoshop, criando o efeito que eu criei nas imagens das perspectivas desse projeto. Eu também lancei lá no canal um vídeo falando um pouco sobre as pranchas. Se você ainda não conhece o meu canal, CLICA AQUI e confere tudo de bom que rola por lá!
Lembrando sempre que se você gostou desse post, é só clicar em curtir aqui embaixo e compartilhar clicando nos botões no fim do post!
Abraços e até a próxima,
Marina






















